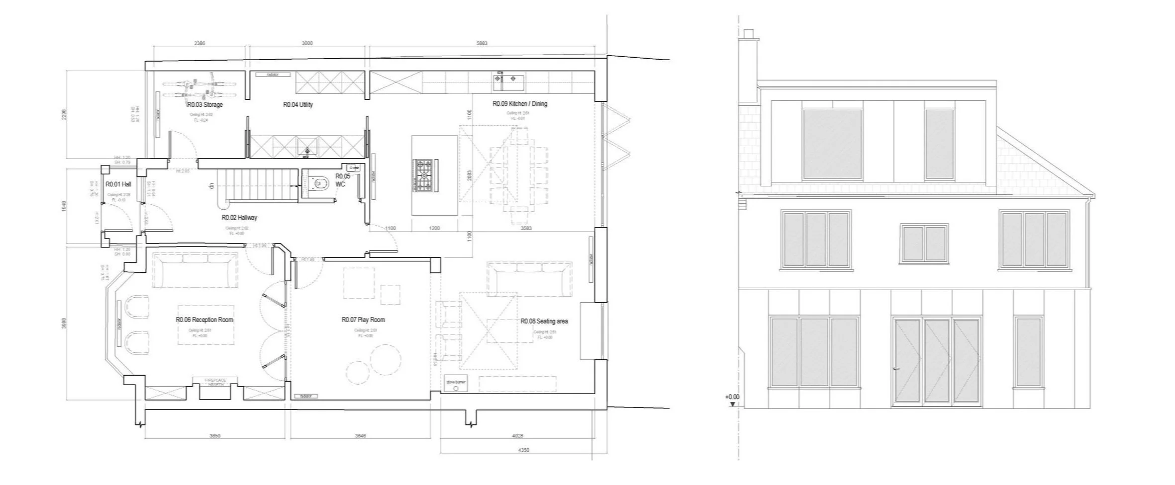
Planning permission granted for a side rear extension and full internal refurbish for our project in East London. October 2024.

Link to the project here

We have been commissioned to design a new family house in Galicia with fantastic views over the beach and the sea in a breathtaking location. O Vicedo, Galicia, June 2024.  

Link to the project here

Interview about exterior colour ideas and how colours affect your house and environment. London, May 2024.

Read article here

Interview about planning permission and all of the consideration you might need to take into account before submitting an application. London, December 2023.

Read article here

Planning permission granted for a full width rear extension and a loft conversion for our project in East London. London, May 2023.

Link to the project here

In March 2023, I was approached by HiiGuru to be part of their group of experts. Since then, I have been collaborating and providing my services as a consultant and an architect.

Link to the web here